OURS大和Ⅲ1号地
ABOUT
\大和Ⅲ分譲地、最終1棟。即入居可能。/
佐賀大和ICまで車で約4分。
通勤や遠出のお出かけにも便利な立地に、待望の平屋が誕生しました。
販売価格:3,830万円
- 建物面積
- 91.09㎡(27.55坪)
- 土地面積
- 275.96㎡(83.48坪)
- 月々お支払例
- 9.1万円 頭金- 万円/ボーナス払い5万円
- 世帯年収目安
- 550万円台
※地方金融機関特別金利0.9%(変動金利・借入期間40年間・ボーナス払い年2回)※物件価格とは別にBELS証明書申請費用165,000円、境界ブロック負担金165,000円が必要となります。
- 約20帖の
広々LDK - 洗面所と脱衣所を分けて
生活のしやすさアップ
CHECK POINT
OURS大和Ⅲ1号地の
チェックポイント
重厚で落ち着いた木目を繊細に再現したアクセントが際立つ外観。
LDKには掘り込み天井を採用することで圧迫感を解消し、ゆったりとした上質なリラックス空間へ。
脱衣室の外に設置した洗面化粧台は入浴時のプライバシーを確保しつつ、来客時も気兼ねなく使える仕様。
プライバシーの確保と機能性を両立させた快適なライフスタイル
HOUSE PLAN
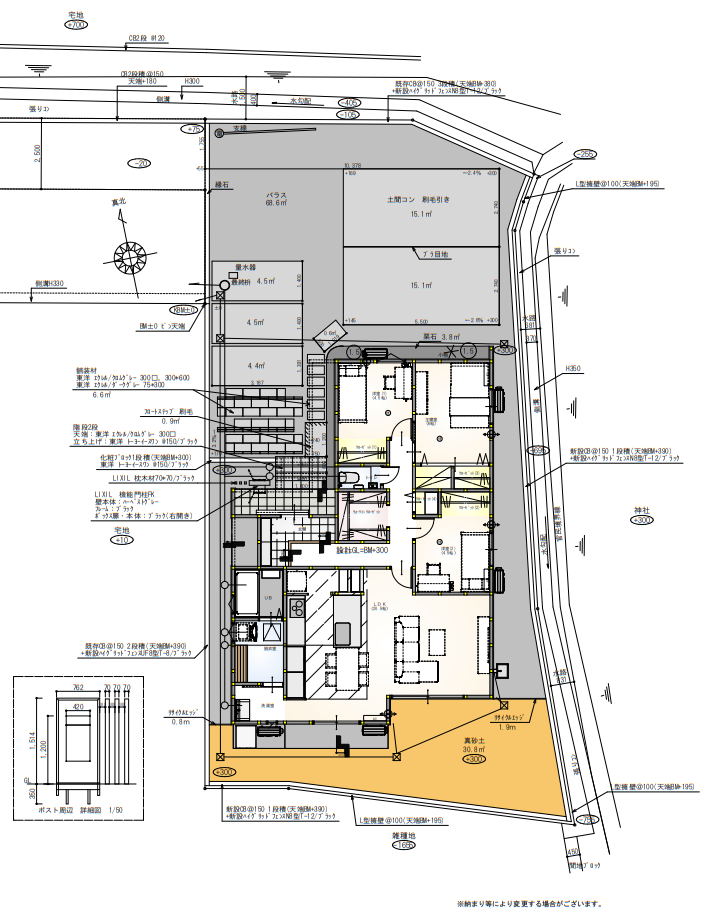
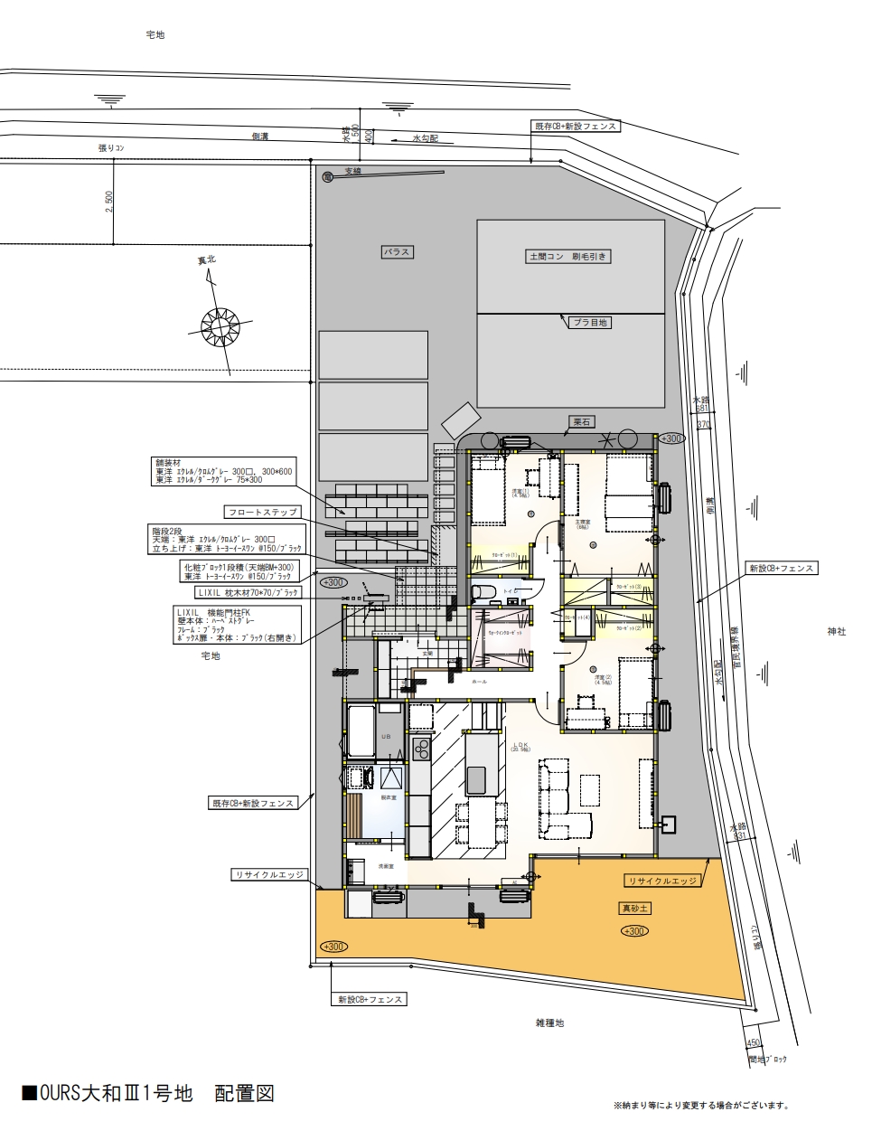
3LDK
LDK約20.5帖 寝室約6帖 洋室約4.5帖 洋室約4.5帖



- OURS大和Ⅲ1号地への
お問い合わせはこちら - お問い合わせ・
見学予約 - 電話でのお問い合わせ
0120-011-514
朝日I&Rリアルティ武雄支店
設備・仕様EQUIPMENT
-
【システムキッチン:LIXIL ND】ワークトップからシンクまで変色・変形が起こりにくい、人造大理石を採用。空間に馴染むシンプルデザイン「オールインワン浄水栓」はワンタッチで原水・浄水の切り替えができるのも嬉しいポイントです。
-
【システムバス:タカラスタンダード RELAXIA】キズに強く、汚れがしみ込みにくい性質のホーロー素材を浴室パネルに使用。皮脂汚れが洗剤なしでお手入れでき、マグネットアイテムがしっかりとくっつきます。
-
【アサヒ衛陶・DUKE】人工大理石製のスクエアシンクで洗練されたデザイン。上下LEDが備え、静かにやさしく閉まるソフトクローズ仕様の二段引き出し収納は奥まで一目で分かりやすく取り出しも簡単。上段と下段で使い分けて収納が可能です。
-
【トイレ:LIXIL INAX】「超節水ECO5トイレ」は3日でお風呂1杯以上の節水効果を期待できます。 停電でリモコン操作ができなくなったときも安心な、手動洗浄機能も搭載されています。
-
【保証内容】お引渡し後10年間で5回実施の定期点検、20年間の地盤保証、水まわりや鍵の緊急トラブル時のかけつけサポート等、新生活を安心して快適に暮らせる住まいのサポートをはじめ、様々なサービスをご用意しております。
-
【BELS(ベルス)】朝日の住宅一棟一棟が、第三者機関による省エネ性能評価を受けています。ラベル内星マークが多いほど省エネ性が高く、家マークが多いほど断熱性能が高い建物であることを表しています。また、OURSシリーズはZEH水準を満たすよう設計されており、BELSにより取得したラベルはその証明書となります。
-
【太陽光発電:シェアでんき】OURSでは初期費用0円で太陽光発電を導入できる「シェアでんき」サービスを導入しています。サービス開始から最初の15年間は「シェアでんき」に自宅の屋根を貸している状態。その間、業界最安値級の22円/kWhで「シェアでんき」から電気を買うことができます。契約終了後は太陽光発電システム一式がお客様へ無償譲渡され、自由に売電可能となります。
-
【断熱材:HUNTSMAN・ダルトフォーム(屋根・壁)】ダルトフォームは約99%が空気でできた安全・環境に優しい断熱材で、吹き付け施工により隙間なく密着し、高気密・高断熱を実現します。室内の温度差を抑え、一年中快適な住環境を保つことで、ヒートショックの防止や冷暖房効率の向上にもつながり、家計にも優しい省エネ効果があります。※屋根:150mm 壁:90mm ※床下には別種の断熱材を使用しております。
-
【第一種換気:STIEBEL ELTRON・VLR-70】室内の空気環境を健全に保つためには計画的な換気が欠かせません。しかし、窓を開けて換気を行うと、せっかく空調で快適に調整された室温が外気に影響されてしまい、再度空調が必要になります。約50秒間隔で排気と給気を交互に行い、高い熱交換効率で冷暖房の無駄を抑えつつ、確実な換気を実現。高性能フィルターが花粉やPM2.5をシャットアウトし、健康で快適な住環境づくりに貢献します。
-
【複層ガラス:LIXIL・Low-E複層ガラス クリア】ガラス層の中に、乾燥空気よりも高い断熱性を発揮するアルゴンガスが入っており、室内の快適な暖房熱を逃がしません。また、室内側のガラスに無色透明の特殊金属膜をコーティングすることで、優れた断熱性能と日射熱取得率の両立を実現。透明度が高いので採光性にも優れています。
-
【耐力面材:タイガーEXプログレ】耐力面材とは、地震や台風による水平荷重(横からの力)に「面」で抵抗する建築材料。弊社物件に使用している面材は①石膏でできているから木質系面材と比べ火に強く、燃えにくい②湿気を外部に放出するため土台や柱、壁などを腐食させる原因となる結露の発生を抑制するという特徴をもち、耐震性だけでなく、耐火性・通気性に優れています。加えて耐震等級3相当の構造設計を採用しています。
-
【玄関ドア:LIXIL・Familock電池式】スマートフォンやリモコン、カードキー、タグキーを使用して玄関ドアの施解錠を行うシステム。スマホをポケットに入れておけば、ドアのボタンをタッチするだけで施解錠ができ、専用アプリから施解錠履歴の確認も可能です。
-
【EV・PHEV充電用屋外コンセント:Panasonic・200V用】屋外に電気自動車の充電用コンセントを設けています。年々高まるEV普及率から将来を見据え、いつでも電気自動車をお迎えできます。
-
【宅配ボックス:LIXIL】玄関ポーチやアプローチに馴染むすっきりとした門柱型の宅配ボックス。120サイズまで受け取り可能な大容量タイプです。
物件概要OUTLINE
- 種目
- 新築一戸建住宅
- 間取り
- 3LDK
- 間取り内訳
- LDK約20.5帖 寝室約6帖 洋室約4.5帖 洋室約4.5帖
- 土地面積
- 275.96㎡(83.48坪)
- 私道面積
- 166㎡(持分1/3)
- 建物面積
- 91.09㎡ (27.55坪)
- 建物構造規模
- 木造平屋建て
- 築年月(竣工月)
- 2025年7月
- 駐車場
- 駐車3台可能
- 建ぺい率/容積率
- 60%・100%
- 都市計画
- 市街化調整区域
- 接道状況
- 西側私道 幅員約6.5m 間口約6.5m
- 地目
- 宅地
- 土地権利
- 所有権
- 地勢
- 平坦
- 用途地域
- 無指定
- 現況
- 完成済
- 取引態様
- 売主
交通・地図ACCESSMAP
- 所在地
- 佐賀県佐賀市大和町大字久池井
- 最寄駅
- JR長崎本線「佐賀駅」駅
- 最寄駅徒歩分数
- 徒歩約94分
- 最寄バス停
- 清和病院前
- 最寄バス停徒歩分数
- 徒歩約11分
- 小学校校区
- 佐賀市立春日北小学校
- 中学校校区
- 佐賀市立大和中学校
「人型アイコン」を地図上にドラッグすることで『Google Street View』に切り替わります。
※地図上の「対象地」は実際の場所ではない場合がございます。詳しくはお問い合わせください。
周辺施設LOCATION
-
佐賀市立春日北小学校:約500m(徒歩約7分)
-
佐賀市立大和中学校:約2400m(徒歩約33分)
-
マックスバリュ尼寺店:約1100m(車約3分)
-
ファミリーマート佐賀大和インター店:約800m(徒歩約11分)
-
イオンモール佐賀大和:約2300m(車約6分)
-
ドラックストアモリ大和店:約1500m(車約5分)
-
佐賀銀行大和町支店:約1100m(車約4分)
-
春日郵便局:約1200m(車約3分)
-
佐賀市役所大和支所:約1300m(車約3分)
-
清和病院:約800m(車約2分)
その他OTHER INFORMATION
- 設備
- 【0円ではじめるおトクな太陽光発電システム「シェアでんき」を導入】
シェアでんきとは?
◆お客様の初期費用一切なし。初期費用完全無料で太陽光システムを搭載。
◆電気代を大幅に節約。発電した電気は業界最安値級の22円/kwhで使用可能。
◆15年後に無償でお譲りします。
◆無償譲渡後は発電した電気を無料でご利用可能。さらに売電収入を得ることが可能。
◆アフターメンテナンスはシェア電気にて負担・対応。
◆電気料金単価の上昇やインフレがあっても契約期間中の値上げは一切なし。
※その他詳細についてはお問い合わせ下さい。 - 特徴
- ■春日北小学校まで徒歩約7分■佐賀大和ICまで車で3分■お得なシェアでんき導入物件
- 諸条件・相談
- ■資料請求や案内等お気軽にお問い合わせください。
■ご来店・現地案内の日時もできる限りご希望に沿えるよう調整させていただきます。
■資金計画・住宅ローンの相談も随時受付けております。 - 情報登録日
- 2024/12/16
- 情報更新日
- 2025/08/12
- 物件番号
- saga103
- 建築確認番号
- 第12408140号
- 取引条件等
- 引渡し: 即時
お問い合わせ・見学予約CONTACT
この物件へのお問い合わせはメールフォームかLINE・お電話にてお問い合わせください。
関連物件
-
OURS 桜岡Ⅲ2号地 - irodori -
住所佐賀県小城市三日月町久米
価格3,680万円
\価格改定を行いました!!/
【即入居可】小城駅まで徒歩約7分。暮らしの利便性と安全を両立した好立地邸宅
家を形作る素材一つひとつ、そして、照明の陰影までも計算しつくして
「和モダン」を演出した住まい... -
OURS 桜岡Ⅲ1号地 -無垢の風-
住所佐賀県小城市三日月町久米
価格3,770万円
【即入居可】小城駅まで徒歩約7分。暮らしの利便性と安全を両立した好立地邸宅
無垢の温もりに包まれ、心までほぐし、日常に癒しを。
回遊動線が紡ぐ、上質な時間の流れ。... -
OURS嬉野Ⅱ3号地
住所佐賀県嬉野市嬉野町大字下野甲
価格3,198万円
\価格改定を行いました!!/
【即入居可】ネイビーのキューブ型外観のクール×スタイリッシュな分譲住宅。リビングが吹き抜けで階が違っても家中が心地良く繋がります。... -
OURS嬉野Ⅱ1号地
住所佐賀県嬉野市嬉野町大字下野甲
価格3,498万円
\価格改定を行いました!!/
南向き玄関は大通りからの視線を遮り、「絵画」のようなピクチャーウィンドウは、帰宅直後のあなたに解放感と植栽の緑による癒しをもたらします。...


